Строительная компания New House
Квадратура
Участок
Стоимость от:
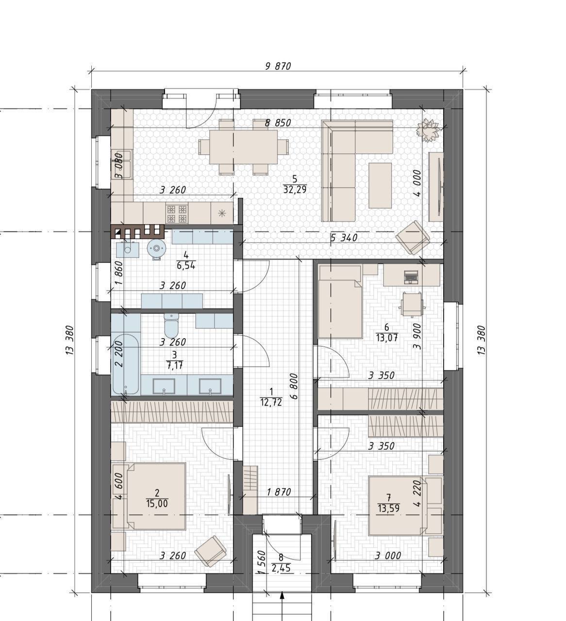
План этажа

Этот одноэтажный дом по адресу Высокая Гора, ул. Сагдиева 30 сочетает комфорт и практичную планировку. Просторная кухня-гостиная и три спальни создают уютное пространство для жизни семьи, а продуманные зоны обеспечивают удобство каждому члену семьи.
План этажа
Крыльцо (2,45 м²) – аккуратный вход в дом, защищённый от непогоды.
Коридор (12,72 м²) – удобное пространство, соединяющее все помещения.
3 спальни (13,59 м²; 13,07 м²; 15 м²) – комфортные комнаты для всех членов семьи или гостей.
Кухня-гостиная (32,29 м²) – просторная зона для приготовления пищи, семейных ужинов и отдыха.
Бойлерная (6,54 м²) – техническое помещение для отопления и коммуникаций.
Санузел (7,17 м²) – полноценный санузел с возможностью размещения всей необходимой сантехники.
Кому подойдёт:
Такой дом станет отличным выбором для семьи, которая ценит просторную кухню-гостиную, отдельные спальни для каждого и практичную планировку. Он также подойдёт для тех, кто любит собираться с близкими, принимать гостей и ценит уютную атмосферу в каждом помещении.
Мы аккредитованы во всех крупных банках страны . Поможем в кратчайшие сроки получить выгодные условия по ипотеке у банков партнеров.
Соберем необходимые документы в кратчайший срок
Снизим затраты на страхование и другие услуги банка
Снизим ставку по партнерской программе
Подадим заявку сразу в 3-5 банков. Выберем лучший




Земельные участки от 200 000 ₽ за сотку
Помощь в оформлении документов
Помощь в сопровождении
Получение ГПЗУ земельного участка
Помощь в получении уведомления о начале строительства
Проверка земельного участка на юридическую чистоту
Сколько стоит построить дом?
Наша компания активно помогает клиентам решать их бизнес задачи уже более 20 лет.
Какие гарантии?
Наша строительная компания предоставляет гарантию 5 лет на несущие конструкции, подтверждая их надежность и соответствие всем нормам безопасности. Гарантия распространяется на дефекты материалов и работы, обеспечивая долговечность и устойчивость вашего объекта.
Как оформляется ипотека?
Наша строительная компания предоставляет гарантию 5 лет на несущие конструкции, подтверждая их надежность и соответствие всем нормам безопасности. Гарантия распространяется на дефекты материалов и работы, обеспечивая долговечность и устойчивость вашего объекта.
А что если при строительстве будут дефекты?
Наша строительная компания предоставляет гарантию 5 лет на несущие конструкции, подтверждая их надежность и соответствие всем нормам безопасности. Гарантия распространяется на дефекты материалов и работы, обеспечивая долговечность и устойчивость вашего объекта.
Строят ли индивидуальные дома зимой ?
Строить индивидуальный дом зимой – это реально и выгодно, если довериться профессионалам!
Зимнее строительство требует тщательного планирования, опытных специалистов и учета погодных условий. К счастью, у нашей компании огромный опыт зимнего строительства! Мы знаем все нюансы и обеспечим качественный результат, несмотря на морозы.
Какие гарантии мы предоставляем при подписании договора подряда?
1. Гарантия на качество выполненных работ:
• Мы несем ответственность за качество всех выполненных работ в соответствии с действующими строительными нормами и правилами (СНиП).
• В договоре четко прописываются сроки гарантии на отдельные виды работ (например, на фундамент, стены, кровлю, отделку).
• В случае обнаружения дефектов в течение гарантийного срока, мы обязуемся устранить их за свой счет в кратчайшие сроки.
2. Гарантия соблюдения сроков строительства:
• В договоре четко указываются сроки начала и окончания строительства, а также промежуточные этапы работ.
• В случае нарушения сроков по нашей вине, мы выплачиваем неустойку в соответствии с условиями договора.
• Мы используем эффективные методы управления проектами и тщательно планируем все этапы строительства, чтобы минимизировать риски задержек.
3. Гарантия фиксированной сметы:
• Мы гарантируем, что стоимость работ, указанная в смете, не будет меняться в течение всего строительства, если только вы сами не внесете изменения в проект.
• Мы тщательно рассчитываем стоимость всех материалов и работ, чтобы избежать непредвиденных расходов.
4. Гарантия использования качественных материалов:
• Мы используем только сертифицированные строительные материалы от проверенных поставщиков.
• В договоре указывается перечень используемых материалов и их характеристики.
• По вашему запросу мы предоставим все необходимые сертификаты качества.
5. Финансовая гарантия:
• Мы работаем по прозрачной схеме оплаты, с четким разделением на этапы и контролем расходования средств.
• Мы предоставляем финансовые документы, подтверждающие все расходы.
6. Юридическая гарантия:
• Наш договор подряда разработан в соответствии с действующим законодательством и защищает ваши права как заказчика.
• Мы готовы предоставить вам для ознакомления типовой договор подряда.
7. Репутационная гарантия:
• Мы дорожим своей репутацией и всегда стремимся к тому, чтобы наши клиенты были довольны результатом нашей работы.
• Мы готовы предоставить вам отзывы наших предыдущих клиентов.
Наша цель – не просто построить вам дом, а предоставить вам уверенность в том, что все будет сделано качественно, в срок и в рамках бюджета. Свяжитесь с нами, чтобы узнать больше о наших гарантиях!
Зимнее строительство требует тщательного планирования, опытных специалистов и учета погодных условий. К счастью, у нашей компании огромный опыт зимнего строительства! Мы знаем все нюансы и обеспечим качественный результат, несмотря на морозы.
какие гарантия предоставляет строительная компания New house при продаже готового дома?
Гарантии при покупке готового дома ⤵️
При покупке готового дома мы гарантируем:
• Качество строительства: Гарантия на все выполненные работы и использованные материалы.
• Соблюдение строительных норм: Дом построен в соответствии со всеми СНиП и ГОСТ.
• Юридическую чистоту: Полный пакет документов и отсутствие обременений.
• Безопасность и комфорт: Дом готов к заселению и соответствует заявленным характеристикам.
Подробности – в договоре купли-продажи.
помогаете ли вы получить одобрение в банке?
Наш опытный ипотечный брокер поможет вам:
• Получить одобрение банка на ипотеку с большей вероятностью.
• Выбрать наиболее выгодные условия ипотечного кредитования, учитывая ваши индивидуальные потребности и возможности.
• Сэкономить время и силы на сборе документов и общении с банками.
• Получить консультацию по всем вопросам, связанным с ипотекой.
С нами покупка дома становится проще и доступнее! Свяжитесь с нами, чтобы узнать больше!
какой срок строительства?
Срок строительства индивидуального дома зависит от многих факторов: размера, сложности проекта, используемых материалов и времени года. В среднем, от 3 месяцев до 6 месяцев
.Чтобы узнать точный срок для вашего проекта, свяжитесь с нами для консультации!
Наш телефон:
Наша почта:
Наш адрес: